 
                                Byggetrinn 1 Sverre Løvbergs veg 8-10
Meld interesseBygg-Team AS ble stiftet i 1998 og har vært forhandler av Systemhus siden 2001. Vårt hovedfokus er nybygg av bolig, både i egenregi og for private kunder. Arbeidene utføres av egne ansatte tømrere. Vi har kompetanse til å bidra med tegning, prosjektering, utstikking, inn-måling og selvfølgelig oppføring av boliger. Våre medarbeidere veileder og hjelper deg gjerne på veien til din boligdrøm.
Leiligheter med sentral beliggenhet i Hernes.
Tomten er lokalisert vis a vis Hernes kirke. Området ligger sentralt i Hernes med kort avstand til både skole, barnehage og kollektiv transport. Tomt 7 har adressen Sverre Løvbergs veg 8-10 og er første av 2 byggetrinn.
Byggningen
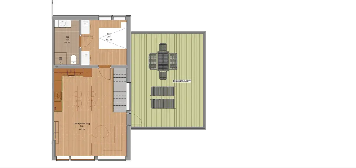
Utvendig har vi lagt vekt på å lage ett moderne design, og en skikkelig romslig takterasse. Planløsningen inneholder i alt 3 soverom, 2 bad, eget vaskerom, sportsbod og carport. Kjøkken og stue er plassert i 2 etg med direkte utgang til takterassen. I 2 etg finnes også hovedsoverom med eget bad direkte tilknyttet. I 1 etg finnes 2 romslige soverom, 1 bad og vaskerom.
Leilighetene har installert vannbåren varme i 1 etg i tillegg til badene i 2 etg. Stue og soverom i 2 etg varmes opp av panelovner.
Kjøkken og vaskeromsinnredninger leveres av Sigdal.
 
                 
                                     
                                     
                                     
                                     
                                     
                                    Byggetrinn 1 Sverre Løvbergs veg 8-10
Meld interesseBygg-Team AS ble stiftet i 1998 og har vært forhandler av Systemhus siden 2001. Vårt hovedfokus er nybygg av bolig, både i egenregi og for private kunder. Arbeidene utføres av egne ansatte tømrere. Vi har kompetanse til å bidra med tegning, prosjektering, utstikking, inn-måling og selvfølgelig oppføring av boliger. Våre medarbeidere veileder og hjelper deg gjerne på veien til din boligdrøm.

 
                                 
                                