 
                                Moderne enebolig i nytt byggefelt
Meld interesseBygg-Team AS ble stiftet i 1998 og har vært forhandler av Systemhus siden 2001. Vårt hovedfokus er nybygg av bolig, både i egenregi og for private kunder. Arbeidene utføres av egne ansatte tømrere. Vi har kompetanse til å bidra med tegning, prosjektering, utstikking, inn-måling og selvfølgelig oppføring av boliger. Våre medarbeidere veileder og hjelper deg gjerne på veien til din boligdrøm.
Moderne enebolig designet fra Systemhus sitt Cubo.
Denne eneboligen ligger midt i Elverums nye bydel Ydalir. Tomteområdet heter Muspelheim, og det er Kvartsvegen som går igjennom området. Området ligger på toppen av Ydalir, noe som gjør at utsikten fra takterrassen blir veldig god. Eiendommen har umiddelbar utgang til marka mot sør, og der finnes kilometervis med turterreng og skiløyper. Ydalir barnehage og skole ligger omlag 300m nord for eiendommen, og det er gang og sykkelveg forbindelse til disse. Handlesentrum hvor man blant annet finner Kiwi, Apotek 1, Europris og Power ligger ca 600m nord. Dette betyr i praksis at man har gangavstand til det meste av fasiliteteter. Tomten er på 419m2, og er selveiet.
 
Moderne og bærekraftige løsninger.
Det er lagt vekt på moderne og bærekraftige løsninger i dette prosjektet. På taket blir det i tillegg til takterrasse plass til ett solcelleanlegg som produserer strøm til eget forbruk. I tillegg til dette installeres det fjernvarme. Fjernvarmen benyttes til oppvarming av forbruksvann, samt oppvarming av vannbåren varme i gulvene. Dette er løsninger som bidrar til redusert klimaavtrykk og økt bærekraft. Det er også lagt vekt på å benytte en høy andel trevirke fremfor andre byggematerialer i prosjektet.

Boligens kvaliteter
Boligen vil bli kledd med Alvdal Royal impregnert kledning. Denne kledningen er så og si vedlikeholdsfri i mange mange år. De vil være i fargen fjellgrå stående panel samt et felt med svart liggende panel for å få en kontrast.
Vinduer, terrassedører og ytterdør blir levert fra NorDan i fargen antrasitt grå.
Fra stuen i plan 2 er det utgang med trapp opp til takterrasse. Takterrassen gir et flott tilskudd til uterom med sol hele dagen uten skyggepartier. I tillegg vil det være utgang til platting og hagen fra stue i plan 1.
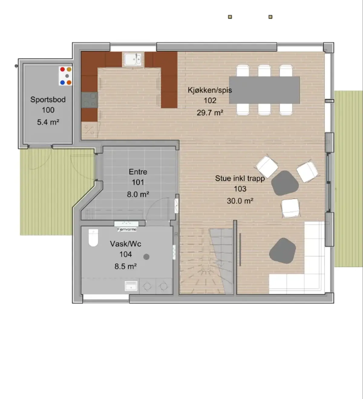
Allrommet et designet med en åpen, romslig og praktisk løsning med kjøkken, spistue og stue i et åpent felles rom. Stuen og spisestuen vil få store vindusflater som vil gi meget gode lysforhold inne.

Kjøkken leveres fra Kjøkken Senteret Elverum AS av typen Sigdal. Bilder i annonsen viser prosjektert kjøkken som ligger inne i oppgitt pris, men det kan gjøres endringer på kjøkken hos Kjøkken Senteret etter eget ønske.På vaskerom leveres innredning fra Kjøkken Senteret som vist på bilder. OBS! hvitevarer medfølger ikke. Endringer på innredning kan også her endres hos leverandør etter eget ønske.
Innvendige overflater som vegg og tak leveres i malt gips og listefri overgang tak/vegg og listefrie vinduer. Farger kan velges etter eget ønske.I tørre rom leveres Boen Concerto som er en 3-stavs parkett i lys eik, bortsett fra i entre hvor det er fliser av typen Sap Kaleido Nero Nat 30x60 cm.
På bad leveres det flislagt gulv og baderomspanel på vegg. Innredes med 120 cm baderomsinnredning med nedfelt servant og glassdør til dusjnisje.
Boligen har 3 soverom slik den er vist frem. Ved å ta plassen til stuen i plan 2, kan en enkelt få 4 soverom.
Det er avsatt plass til garasje eller carport. Dette kan prosjekteres inn dersom det er ønskelig.

Tomten i Kvartsvegen 12
Tomten er en selveiet tomt på 419,8 kvm.
Tomten eies av Terje Christian Svenkerud hvor Bygg-Team AS har en avtale om utvikling av tomten.
Oppgitte salgspris i annonsen er inkludert tomtepris.
 
                                     
                                    | Bolig | Sov | Bad | P-rom (m²) | BRA (m²) | Pris | |
|---|---|---|---|---|---|---|
| Enebolig med 3-4 soverom | 3-4 | 1 | 164,7 | 6 400 000 |  | 
 
                Moderne enebolig i nytt byggefelt
Meld interesseBygg-Team AS ble stiftet i 1998 og har vært forhandler av Systemhus siden 2001. Vårt hovedfokus er nybygg av bolig, både i egenregi og for private kunder. Arbeidene utføres av egne ansatte tømrere. Vi har kompetanse til å bidra med tegning, prosjektering, utstikking, inn-måling og selvfølgelig oppføring av boliger. Våre medarbeidere veileder og hjelper deg gjerne på veien til din boligdrøm.

 
                                 
                                